港区
渋谷区
目黒区
世田谷区
新宿区
千代田区
その他
SEARCH
エリア
間取り
六本木デザイナーズオフィス
六本木レジデンスオフィス
六本木リュクスレジデンスSOHO
西麻布デザイナーズオフィス
神谷町デザイナーズSOHO
赤坂デザイナーズSOHO
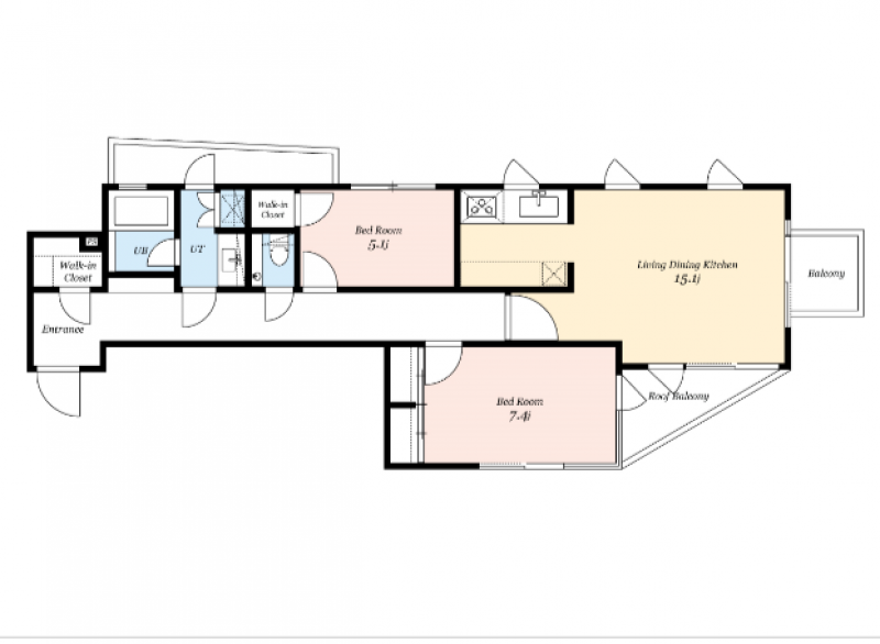
六本木レジデンス
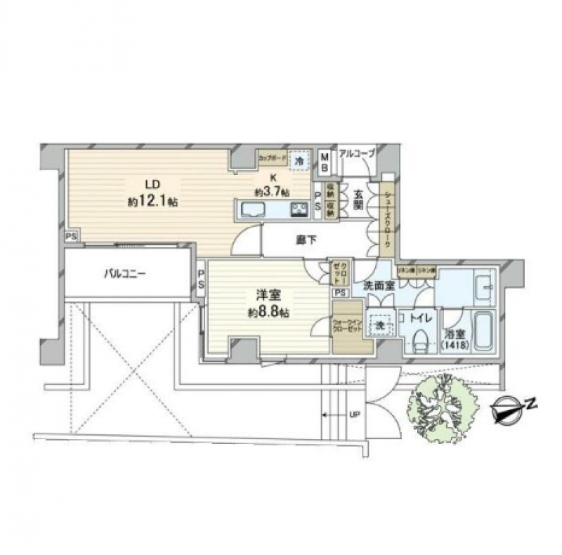
三田綱町レジデンス
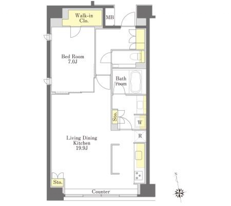
六本木デザイナーズハウスオフィス
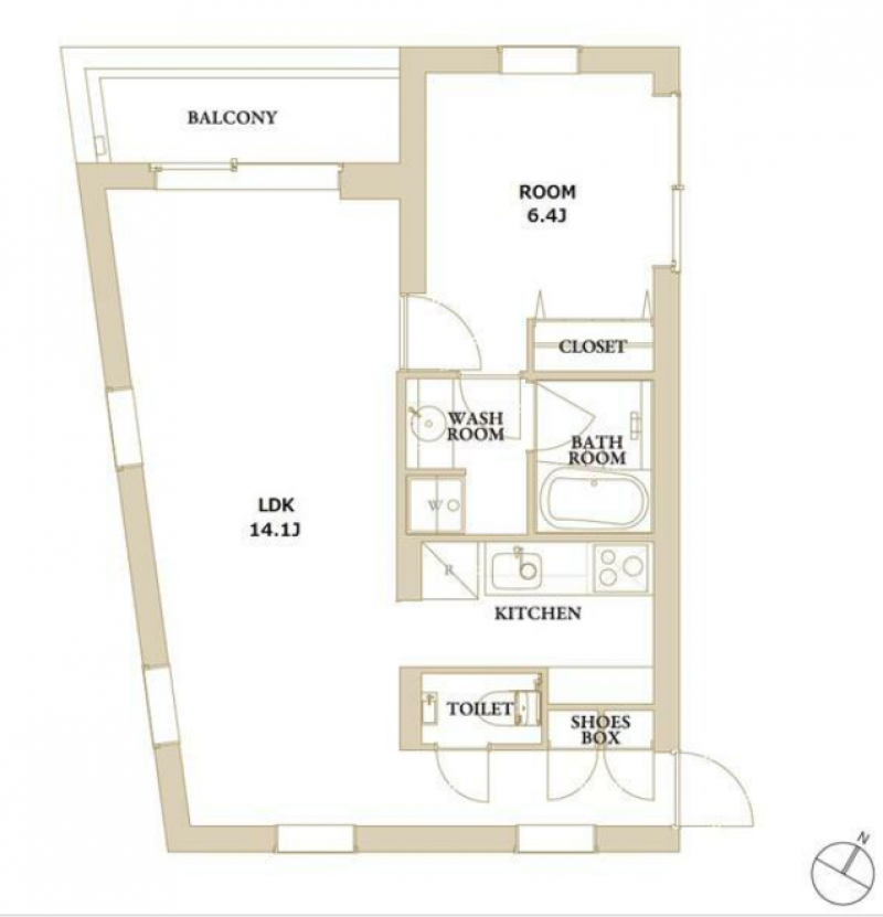
西麻布デザイナーズSOHO
六本木デザイナーズSOHO
六本木デザインレジデンスSOHO
南麻布デザイナーズSOHO
虎ノ門ラグジュアリーレジデンスSOHO
六本木檜町ラグジュアリーレジデンスSOHO
赤坂ヴィンテージマンション
六本木ラグジュアリーマンション