港区
渋谷区
目黒区
世田谷区
新宿区
千代田区
その他
SEARCH
エリア
間取り
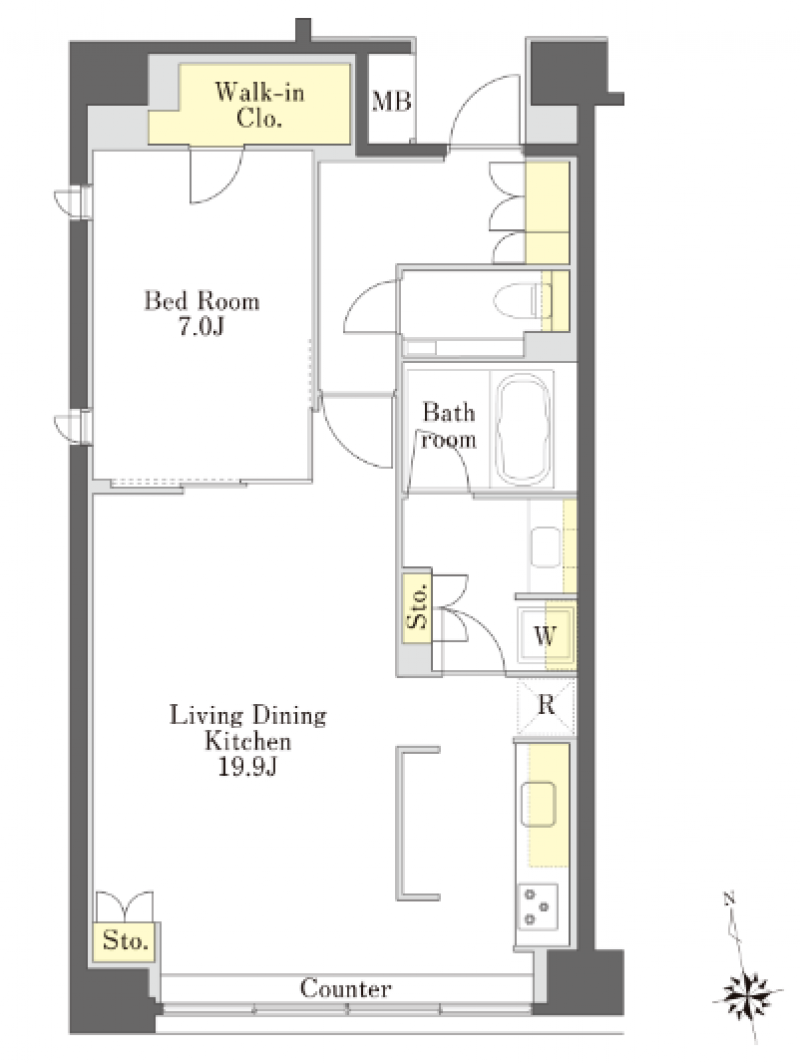
南麻布レジデンス
麻布タワーマンション
白金台オフィスビル
白金デザイナーズマンション
三田オフィスビル
三田マルチマンション
芝マルチビル
南麻布オフィスビル
白金デザイナーズレジデンス
白金台デザイナーズマンション
三田低層デザイナーズマンション
麻布ラグジュアリーマンション
三田タワーマンション
元麻布低層プライベートレジデンス
三田ヴィンテージタワーマンション
三田ラグジュアリーマンション
白金台レジデンス
元麻布ラグジュアリーレジデンス
白金プレミアムレジデンス