港区
渋谷区
目黒区
世田谷区
新宿区
千代田区
その他
SEARCH
エリア
間取り
神宮前デザイナーズオフィス
原宿デザイナーズオフィス
原宿デザイナーズSOHO
表参道SOHO
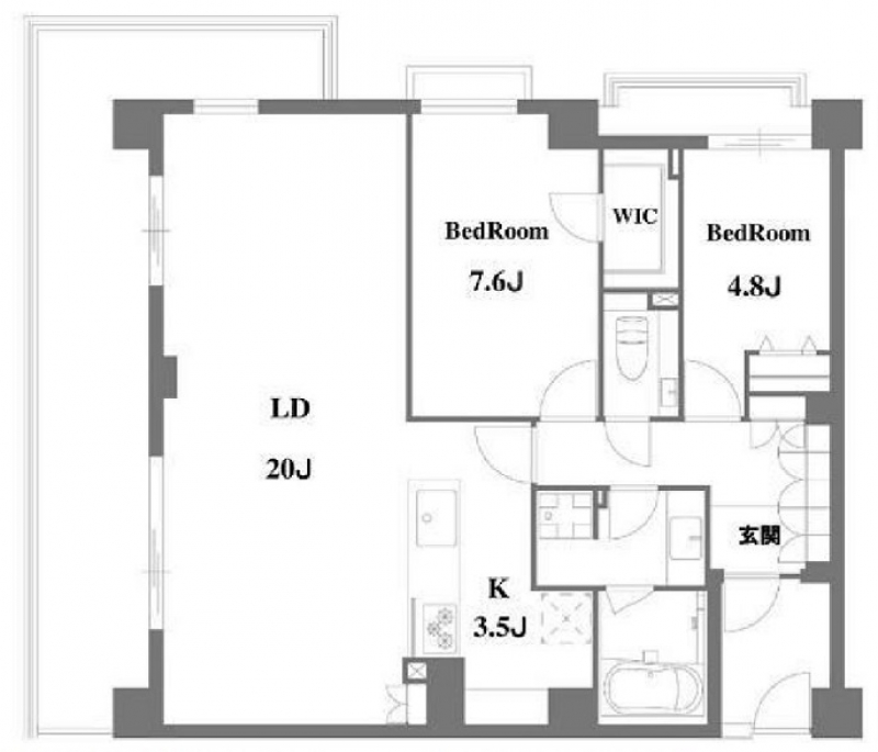
南平台低層レジデンスマンション
代々木デザイナーズレジデンスSOHO
外苑デザイナーズレジデンスSOHO
渋谷デザイナーズオフィス
千駄ヶ谷デザイナーズオフィス
渋谷デザイナーズSOHO
神宮前ヴィンテージオフィス
神宮前デザイナーズSOHO
表参道デザイナーズSOHO
青山オフィスビル
渋谷デザイナーズマンション
青山ヴィンテージオフィス
原宿ヴィンテージオフィス
松濤デザイナーズSOHO